VILLA PRIMAVERA ADIACENZE- VILLA A3
€ 370.000
Campoformido, Udine
Dettagli
Contratto Vendita
Rif VILLA PRIMAVERA ADIACENZE - VILLA A3 NUOVA COSTR
Prezzo € 370.000
Provincia Udine
Comune Campoformido
Vani 4
Camere 3
Bagni 2
Classe energetica
A4 (DL 90/2013)
EPgl,nren 175 kwh/m2 anno
Riscaldamento autonomo
Condizioni nuova costruzione
Anno di costruzione 2024
Cucina abitabile
Consistenze
| Descrizione | Superficie | Sup. comm. |
|---|---|---|
| Principali | ||
| Immobile - piano terra | 136 Mq | 136 Mqc |
| Totale | 136 Mqc | |
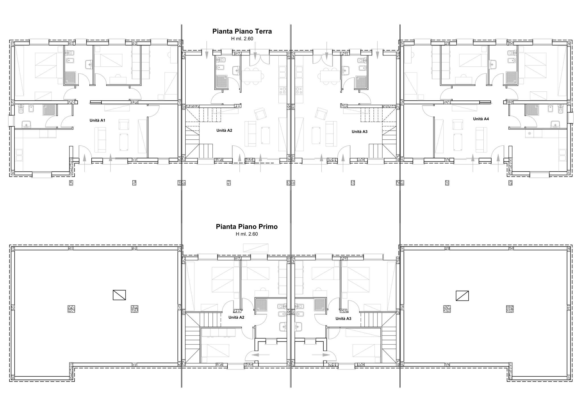
VILLA PRIMAVERA ADIACENZE - VILLA A3 di 136 mq., terreno 194 mq. Soffitta isolata perimetrale - NUOVA COSTRUZIONE - CLASSE ENERGETICA A4 A BASSISSIMO CONSUMO ENERGETICO
Villetta accostata di nuova costruzione su due livelli composta da soggiorno, cucina, 3 camere, 2 bagni, ripostiglio-lavanderia e portico coperto. Giardino di circa 124 mq e 1 posto macchina coperto esterno e 2 posti macchina scoperti esterni di proprietà. Cappotto esterno in stiferite da 12 cm per la massima isolazione termica che viene applicata anche alla pavimentazione dei singoli piani e al tetto grazie all'utilizzo di pannelli isolanti di ultima generazione. Serramenti in alluminio con vetri a triplo vetro, avvolgibili in alluminio con movimentazione elettrica e zanzariere. Porta blindata. Impianto di riscaldamento a pavimento. Radiatori del tipo scalda salviette elettrici completi di comando con termostato installati nei bagni. Tetto ventilato con isolamento in poliuretano da 10 cm. Predisposizione per: impianto allarme, impianto di raffrescamento, installazione caminetto e colonnina ricarica auto. Impianto fotovoltaico. Classe energetica A4 (nZEB) con massimo standard energetico ad oggi raggiungibile. Gli nZEB (nearly Zero Energy Building) sono edifici ad elevatissimo risparmio energetico che richiedono per il loro funzionamento un consumo energetico estremamente basso, quasi nullo. Possibilità di scelta delle finiture interne (pavimenti, ceramiche e sanitari).
Le foto ed i rendering sono a titolo puramente esemplificativo e non costituiscono elemento contrattuale.
Villetta accostata di nuova costruzione su due livelli composta da soggiorno, cucina, 3 camere, 2 bagni, ripostiglio-lavanderia e portico coperto. Giardino di circa 124 mq e 1 posto macchina coperto esterno e 2 posti macchina scoperti esterni di proprietà. Cappotto esterno in stiferite da 12 cm per la massima isolazione termica che viene applicata anche alla pavimentazione dei singoli piani e al tetto grazie all'utilizzo di pannelli isolanti di ultima generazione. Serramenti in alluminio con vetri a triplo vetro, avvolgibili in alluminio con movimentazione elettrica e zanzariere. Porta blindata. Impianto di riscaldamento a pavimento. Radiatori del tipo scalda salviette elettrici completi di comando con termostato installati nei bagni. Tetto ventilato con isolamento in poliuretano da 10 cm. Predisposizione per: impianto allarme, impianto di raffrescamento, installazione caminetto e colonnina ricarica auto. Impianto fotovoltaico. Classe energetica A4 (nZEB) con massimo standard energetico ad oggi raggiungibile. Gli nZEB (nearly Zero Energy Building) sono edifici ad elevatissimo risparmio energetico che richiedono per il loro funzionamento un consumo energetico estremamente basso, quasi nullo. Possibilità di scelta delle finiture interne (pavimenti, ceramiche e sanitari).
Le foto ed i rendering sono a titolo puramente esemplificativo e non costituiscono elemento contrattuale.
Richiedi maggiori informazioni
Mappa
Zoom della mappa
Apri con:
Apple Maps
Google Maps
Waze
Contattaci
Giulia Immobiliare Trieste
Via Valdirivo, 40 34122 TRIESTE (TS)
Via Valdirivo, 40 34122 TRIESTE (TS)
P.IVA: 00810150326
+39040351450
giuliaimmobiliare.trieste@gmail.com





